RIS-ORANGIS (91) - Idéal MSP - AV local professionnel neuf PMR 280 m² avec grand jardin privatif
- Installation
- Ris-Orangis 91
- ID : 7040
Opportunité d'installation libérale, de regroupement ou création d'une maison de santé pluri professionnelle à Ris-Orangis
Ris-Orangis
Visualiser l’itinéraireAnnonce consultée : 6 fois
Nombre de personnes intéressées : 0
Mise à jour le : 08/06/2025

Description
Dans un nouveau quartier composé de 200 logements et commerces de proximité, à RIS-ORANGIS (91) :
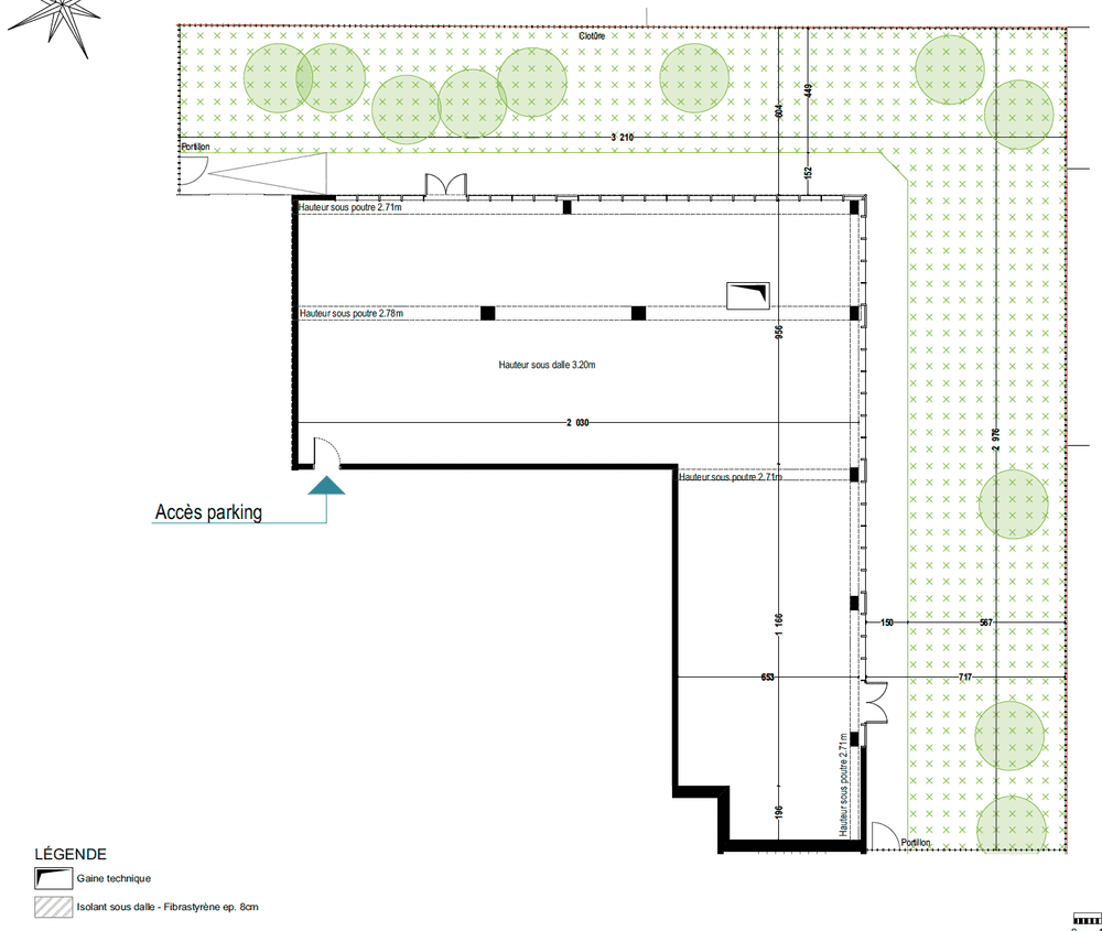
Local professionnel PMR (280 m²) situé au rez-de-chaussée d'une ensemble réhabilité bénéficiant d'une bonne visibilité depuis la voie publique. Finition brut de béton, fluides en attente. Travaux d'aménagement à la charge du futur acquéreur/utilisateur
Locaux lumineux, large linéaire en façade, jardin privatif
Bassin de population très dense. Belle opportunité pour créer un cabinet de groupe ou une MSP dans une zone prioritaire tout en investissant dans votre immobilier professionnel.
Disponibilité juin 2025. Prix de vente : 2 200 HT /m²
Tous nos programmes immobiliers de santé ne sont pas publiés en ligne. Contactez-nous !
Info :
01.46.47.06.36
contact@medicings.com
- Date d’installation souhaitée09 juin 2025

Société de conseil spécialisée dans l'immobilier de santé et l'aménagement d'espaces intérieurs
DécouvrirAdresse
Ris-Orangis
Spécialité(s) recherchée(s)
Allergologie
Anatomie et cytologie pathologique
Anesthésie-réanimation
Biologie médicale
Cardiologie et maladies vasculaires
Chirurgie générale
Chirurgie infantile
Chirurgie maxillo-faciale et stomatologie
Chirurgie orale
Chirurgie orthopédique et traumatologie
Chirurgie plastique, reconstructrice et esthétique
Chirurgie thoracique et cardiovasculaire
Chirurgie thoracique et cardiovasculaire
Chirurgie urologique
Chirurgie vasculaire
Chirurgie viscérale et digestive
Dermatologie et vénérologie
Endocrinologie, diabète, maladies métaboliques
Gastro-entérologie et hépatologie
Gériatrie
Gynécologie médicale
Gynécologie obstétrique
Médecine d'urgence
Médecine générale
Médecine Interne
Médecine physique et de réadaptation
Médecine vasculaire
Néphrologie
Neurochirurgie
Neurologie
Oncologie
Ophtalmologie
ORL et chirurgie cervico-faciale
Pédiatrie
Pneumologie
Psychiatrie
Radiodiagnostic et imagerie médicale
Rhumatologie
Types d’offres
Collaboration
Type de cabinet
Groupe pluriprofessionnel / Maison de santé
Type de secrétariat
Secrétariat sur place
Secrétariat à distance / téléphonique
Outils de prise de rendez-vous en ligne
Partager :
Intéressé par cette annonce ?
Cette annonce correspond à ce que vous recherchez ?