Chelles (77) Professions de santé / Installation
- Installation
- Chelles 77
- ID : 2284
Nouvelle MSP à Chelles recherche médecin généraliste pour locaux conformes PMR, proches commodités. Projet soutenu par la ville, ZRR, aides CPAM.
33 Rue Saint Hubert 77500 Chelles
Visualiser l’itinéraireAnnonce consultée : 16 fois
Nombre de personnes intéressées : 0
Mise à jour le : 19/11/2025

Description
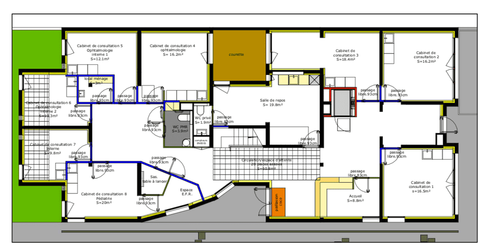
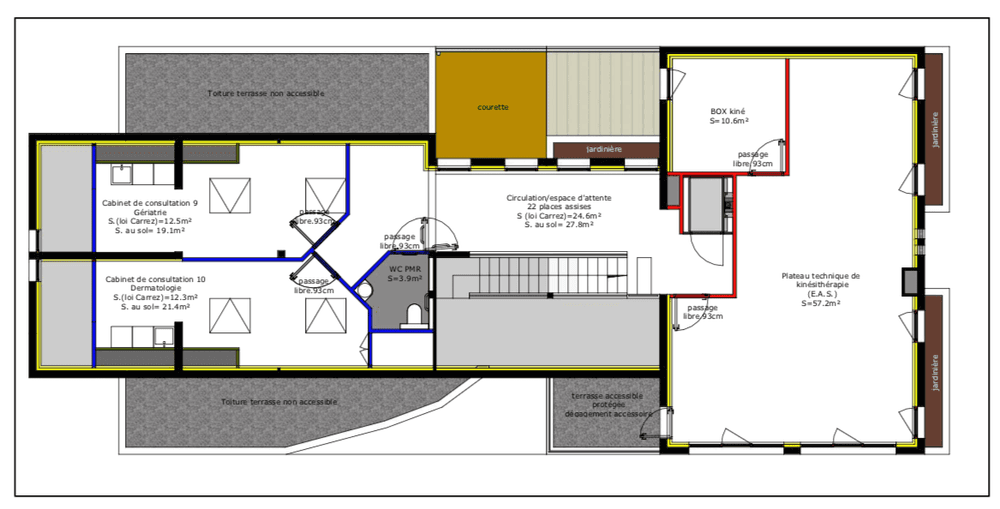
Nouvelle MSP ouvert en Janvier 2025 à Chelles. Nous recherchons un médecin généraliste pour rejoindre notre MSP dans un nouveau local au centre ville de Chelles. La MSP comprend 10 cabinets, une salle d’attente commune, un espace d'attente devant les cabinets, deux toilettes PMR et une privée, une salle de réunion, un espace détente avec cuisine, un espace de rangement et un vestiaire. Les locaux sont en normes PMR. Proche de toutes convenances, transports, stationnement, commerces. Le plan et les modélisations des locaux sont en PJ. La structure accueille actuellement 2 médecins généralistes, 2 kinésithérapeutes, une neurologue, une pédiatre, une podologue et une infirmière. Nous souhaiterions accueillir un médecin généraliste pour avoir une offre de soin complète pour les patients. Chelles est en Zone d'Intervention Prioritaire : les médecins peuvent bénéficier d'une aide à l'installation de la CPAM pouvant aller jusqu'à 50 000 €. Chelles est une ville de 56000 habitants proche de Paris et future gare du grand Paris (15mn gare de l’est - RER E). Elle est proche des grands bassins d'emploi (Paris, Marne-la-Vallée, Roissy ...). Elle offre tous les services pour la vie de famille (scolarité, modes de gardes, sport, culture et loisirs). Nous sommes à proximité de 2 hôpitaux publics (Hôpital de Montfermeil - hôpital de Marne la vallée) et 2 privés (Hôpitaux privés de Marne et Chantereine et du Vert Galant) qui offrent tous les correspondants nécessaires.
Contact: 07 81 51 93 53
- Date d’installation souhaitée01 janvier 2025

Dr Kajarooban
DécouvrirAdresse
33 Rue Saint Hubert 77500 Chelles
Types d’offres
Association
Type de cabinet
Groupe pluriprofessionnel / Maison de santé
Type de secrétariat
Outils de prise de rendez-vous en ligne
Secrétariat sur place
Spécialité(s) recherchée(s)
Allergologie
Cardiologie et maladies vasculaires
Chirurgie générale
Partager :
Découvrez le cabinet

Intéressé par cette annonce ?
Cette annonce correspond à ce que vous recherchez ?



